แบบบ้านสวย 2 ชั้น สไตล์มินิมอลทรงกล่อง น่าอยู่มากๆ
โพสท์โดย warrior B
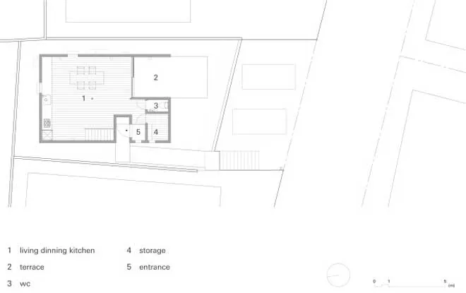
ดว่าเป็นบ้านที่ออกแบบได้ลงตัว เหมาะกับพื้นที่ในตัวเมืองมากๆ เลยครับ แบบบ้านสองชั้นหลังนี้ ด้วยการอออกแบบให้เป็นทรงกล่องสี่เหลี่ยมธรรมดามีพื้นที่ 2 ชั้น แต่จะสร้างไว้บนเนินเขาหรือท่ามกลางธรรมชาติก็ยอดเยี่ยมไม่เบาเช่นกัน ตัวบ้านใช้โครงสร้างคอนกรีต ภายนอกตกแต่งด้วยโทนสีขาวและน้ำตาล ผสมผสานเข้ากับวัสดุไม้ที่แทรกเข้ากับวัสดุสมัยใหม่ได้อย่างลงตัว
ภายในบ้านออกแบบให้มีขนาด 2 ห้องนอน 2 ห้องน้ำ จัดวางแบ่งโซนแยกกันกับโซนห้องพักผ่อน เน้นความสงบ ดูทันสมัยด้วยการแตกแต่งภายในแบบทูโทนเช่นเดียวกับภายนอกด้วยสีขาวและน้ำตาล แฝงด้วยงานไม้ที่เข้ากันมากๆ ทั้งพื้น ผนังและเพดาน (หากใชไม้สีเข้มน่าจะสวยยิ่งกว่านี้ครับ)





จัดว่าเป็นแบบบ้านสวยแบบง่ายๆ ที่ดูลงตัวและมีความทันสมัยอีกด้วยใครชื่นชอบบ้านแนวนี้ก็ลองเอาไปประยุคใช้สำหรับบ้านตัวเองกันได้เลยครับ
ขอบคุณที่มา: https://www.ที่สุดในโลก.com/แบบบ้านสวย-2-ชั้น.html
ที่มา : humble-homes
ที่มา : humble-homes
เป็นกำลังใจให้เจ้าของกระทู้โดยการ VOTE และ SHARE
8 VOTES (4/5 จาก 2 คน)
VOTED: jujuuuu, taewsa
Hot Topic ที่น่าสนใจอื่นๆ
ราชกิจจาฯ เผยแพร่ คำสั่งศาลให้ นักแสดงรุ่นใหญ่ “มยุรฉัตร เหมือนประสิทธิเวช” ผู้จัดดัง เป็นคนไร้ความสามารถ
เปิดคำตอบรอบ 5 คนสุดท้าย ใครพูดได้ใจมากที่สุด
ผัก ผลไม้ กินแล้ว "ตัวหอม"
"โดนัลด์ ทรัมป์" หัวร้อนจัดหลังเกือบเสียท่าในเกมการเมืองกับกัมพูชา จนทำให้ไทยเกือบหันไปซบจีน ปิดทางทะเล ดับฝัน ฮุนเซน ที่จะมีทางออกทะเลเสรีพังทะลายลงทันที
เวย์โพสต์ “วันที่ยากนี่แหละ จะเห็นว่าใครคือครอบครัวจริง เพื่อนแท้ คู่ชีวิต หรือแค่คนผ่านทาง”
งิ้วในการแสดง: โครงสร้างอันศักดิ์สิทธิ์
แม้แต่ผู้สร้างยังเจอผลกระทบ! ทรัพย์สินของ Satoshi Nakamoto ลดลงกว่าล้านล้านบาทในเวลาเพียงเดือนเดียว
10 เลขขายดี "สลากพารวย" งวดวันที่ 1 ธันวาคม 68..ส่องเลย เลขไหนมาแรง!!
รวมภาพตลกขำขันประจำวันนี้ วันที่ลมแรง แถมอากาศเย็นสบาย น่านอนจริงๆเลยเน่อ
พาส่องธุรกิจ ของคุณนานา ไรบีนา ที่หลายคนยังไม่เคยรู้
ดราม่าเดือด นครสวรรค์! ตำรวจจอดรถไม่ดับเครื่อง เสียงดังจนแม่ค้าทนไม่ไหว เดินออกมาให้ตำรวจดับเครื่อง เนื่องจากมีแม่ป่วยอยู่ในร้าน
บัญชาการตำรวจตระเวนชายแดน สั่งระดมกำลัง ตชด. กว่า 2,000 นาย ลุยชายแดน เขมรหนีหวาดกลัว หลังไทย ส่ง F-16 ลาดตระเวนปราสาทตาควายHot Topic ที่มีผู้ตอบล่าสุด
เวย์โพสต์ “วันที่ยากนี่แหละ จะเห็นว่าใครคือครอบครัวจริง เพื่อนแท้ คู่ชีวิต หรือแค่คนผ่านทาง”
แม้แต่ผู้สร้างยังเจอผลกระทบ! ทรัพย์สินของ Satoshi Nakamoto ลดลงกว่าล้านล้านบาทในเวลาเพียงเดือนเดียว
ดราม่าเดือด นครสวรรค์! ตำรวจจอดรถไม่ดับเครื่อง เสียงดังจนแม่ค้าทนไม่ไหว เดินออกมาให้ตำรวจดับเครื่อง เนื่องจากมีแม่ป่วยอยู่ในร้าน
10 เลขขายดี "สลากพารวย" งวดวันที่ 1 ธันวาคม 68..ส่องเลย เลขไหนมาแรง!!
เปิดคำตอบรอบ 5 คนสุดท้าย ใครพูดได้ใจมากที่สุด
งิ้วในการแสดง: โครงสร้างอันศักดิ์สิทธิ์กระทู้อื่นๆในบอร์ด
ข่าววันนี้
"โบว์ เมลดา" สวยตลก ไม่เคยตายไมค์ เปิดเส้นทางจาก Kiss Me Five ชีวิตพลิกผันหลังชนะเลิศ ไทยซุปเปอร์โมเดลคอนเทสต์ 2013"
ดราม่าเดือด นครสวรรค์! ตำรวจจอดรถไม่ดับเครื่อง เสียงดังจนแม่ค้าทนไม่ไหว เดินออกมาให้ตำรวจดับเครื่อง เนื่องจากมีแม่ป่วยอยู่ในร้าน
บัญชาการตำรวจตระเวนชายแดน สั่งระดมกำลัง ตชด. กว่า 2,000 นาย ลุยชายแดน เขมรหนีหวาดกลัว หลังไทย ส่ง F-16 ลาดตระเวนปราสาทตาควาย
ทหารเขมร สุดห้าว โพสต์ภาพ พร้อมแคปชั่น อยากสอยโดรนพวกเสียม