แบบบ้านสวย! เกสต์เฮาส์กลางสวน ร่มรื่น 2 ห้องนอน 2 ห้องน้ำ ออกแบบง่ายๆ น่าอยู่มาก
โพสท์โดย sickpack
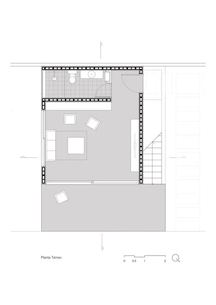
หลังนี้จัดว่าน่าอยู่มากๆ สำหรับ เกสต์เฮาส์กลางสวน ที่ล้อมรีอบด้วยบรรยากาศร่มรื่นทั้งวัน เพียบพร้อมไปด้วย พรรณไม้นานาชนิด เป็นแบบที่หลายๆ คนฝันถึงเลยทีเดียว ตัวบ้านได้รับการออกแบบให้เป็นคูหารูปทรงสี่เหลี่ยมง่ายๆ มีโครงสร้างหลักเป็นเหล็ก พร้อมกล่องยื่นที่โดดเด่น ตกแต่งผนังด้วยงานไม้ ติดสลับเป็นช่องแสงไปกับผนังคอนกรีต และใช้กระจกบานใหฐ่ เพื่อให้ได้แสงจากธรรมชาติในตัวบ้าน
ห้องถูกแบ่งสัดส่วนออกเป็น 2 ชั้น เป็นห้องนอนและห้องน้ำ คู่กันอย่างละชั้น ภายในตกแต่งแบบโมเดิร์นลอฟท์ ผสมผสานทั้งงานไม้ เหล็ก งานคอนกรีต และตกแต่งแบบเรียบง่าย ผนังเพดานโทนขาว ตัดกับพื้นไม้ด้านล่างดูลงตัว บ้านหลังนี้มีพื้นที่ใช้สรอยขนาด 78 ตร.ม. แม้จะดูเล็กๆ แต่ก็จัดว่าร่มรื่นน่าอยู่เอามากๆ ใครชื่นชอบก็ลองเอาไปปรับใช้กันดูได้ครับ
ขอบคุณที่มา: http://www.xn--12c1bij4d1a0fza6gi5c.com/guest-house-in-garden.html
ที่มา : casaclaudia
ที่มา : casaclaudia
เป็นกำลังใจให้เจ้าของกระทู้โดยการ VOTE และ SHARE
12 VOTES (4/5 จาก 3 คน)
VOTED: zerotype, MsFour
Hot Topic ที่น่าสนใจอื่นๆ
โรงเรียนที่ต้องจ่ายค่าเทอมแพงที่สุดในประเทศไทย
เปิดภาพ “สิ่งมีชีวิตยักษ์ใต้ทะเลลึก” การค้นพบที่นักวิทยาศาสตร์ยังทึ่ง
10 มหาวิทยาลัย ที่มีเปอร์เซ็นต์การสอบผ่านครูผู้ช่วย มากที่สุด
ทำไมเราจึงซื้อหวยไม่ถูก
หนึ่งในมหาวิทยาลัยที่มีพื้นที่กว้างขวางที่สุดแห่งหนึ่งในประเทศไทย
ข้าราชการ C8 เงินเดือนเท่าไหร่
รวม เลขปฏิทินจีน งวด 16/3/69
ส่องรายได้วินมอเตอร์ไซค์ในกรุงเทพฯ เดือนหนึ่งได้เท่าไหร่
ประเทศที่ขอสัญชาติได้ยากที่สุด อันดับที่หนึ่งของโลก
ประเทศที่ไม่มีงูอยู่เลย ในพื้นที่ทางธรรมชาติ
เผย 10 ประเทศที่ร้อนที่สุดในโลก ปี 68 ไทยไม่ติดโผ!
รู้จัก 10 จังหวัดในอดีตของไทย ที่ถูกยุบรวมจนไม่เหลือชื่อบนแผนที่Hot Topic ที่มีผู้ตอบล่าสุด
ประเทศที่ขอสัญชาติได้ยากที่สุด อันดับที่หนึ่งของโลก
ปัตตานีเดือด พบข้อความปริศนา “ปาตานี ไม่ใช่สยาม” โผล่กลางถนนพื้นที่ชายแดนใต้ เจ้าหน้าที่เร่งตรวจสอบผู้ก่อเหตุ
เผย 10 ประเทศที่ร้อนที่สุดในโลก ปี 68 ไทยไม่ติดโผ!












