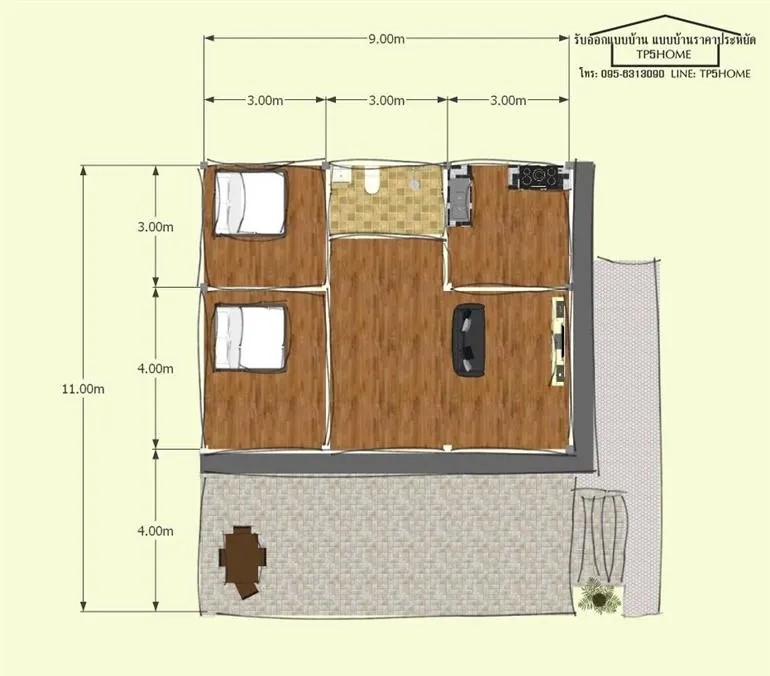
แบบบ้านชั้นเดียว ทรงสี่เหลี่ยมมีดาดฟ้า ขนาด 2 ห้องนอน 1 ห้องน้ำ
มีมาให้ได้ติดตามกันอีกแล้วสำหรับแบบบ้านสวยๆ ของเราในวันนี้ครับ ใครที่ชื่นชอบความเรียบง่าย อยากได้บ้านชั้นเดียวแบบที่ไม่ต้องหรูหราไว้อยู่กับครอบครัวไม่กี่คน เราแนะนำหลังนี้เลยครับ บ้านชั้นเดียวทรงสี่เหลี่ยมง่ายๆ
โดดเด่นด้วยดาดฟ้าด้านบน เหมาะกับครอบครัวเริ่มต้นยังคงมีแบบบ้านสวยๆ มาแนะนำให้ทุกท่านได้ดูได้เลือกไปไว้สร้างบ้านจากเพจ TP5HOME ที่รับออกแบบบ้าน และมีแบบบ้านราคาประหยัดให้เลือก กันเช่นเคยนะครับ โดยหลังนี้เป็นแบบบ้านชั้นเดียวทรงสี่เหลี่ยมง่ายๆ แต่ไม่ธรรมดาด้วยการยกฐานขึ้นเล็กน้อย พร้อมกับเฉลียงหน้าบ้านเล็กๆ เป็นพื้นที่นั่งเล่นในครอบครัว นอกจากนี้ชั้นบนไม่มีหลังคา แต่ออกแบบให้เป็นดาดฟ้าทั้งหมด ไว้นั่งกินลมเย็นๆ อีกต่างหาก การตกแต่งและสีสันก็มาในแบบโมเดิร์นสมัยใหม่
ตัวบ้านมีขนาด 2 ห้องนอน 1 ห้องน้ำ 1 ห้องรับแขก/โถง 1 ครัว ขนาดตัวบ้านอยู่ที่ 9 X 7 เมตร ราคาก่อสร้างคร่าวๆ อยู่ที่ราว 6.8 แสนบาทเท่านั้น จัดว่าลงตัวเลยทีเดียวครับ
วิธีสังเกตภาพ AI ที่บางคนยังไม่รู้
ศาลสั่งจำคุก สิระ เจนจาคะ 1 ปี จำเลยให้การเป็นปนะโยชน์ลดโทษ จำคุก8 เดือน ไม่รอลงอาญา กรณี หมิ่นประมาท พล.ต.อ.เสรีพิศุทธ์
รวมภาพตลกเฮฮาขำขันประจำวันนี้ วันที่อากาศหนาวเย็นมากขึ้นในหลายพื้นที่ แต่บางพื้นที่ก็ยังมีฝนตกหนักน้ำท่วม รักษาเนื้อรักษาตัวกันด้วยน๊า
จีนทวงหนี้แสนกว่าล้าน "ฮุนเซน" ถังแตก ไม่มีเงินจ่ายหนี้ ต้องกู้ IMF ซ้ำจีนไม่ให้กู้เพิ่มแล้ว
"โอ๊ต ปราโมทย์" ลั่นกลางเวทีเปิดหมวก "ถ้าพึ่งกันเองได้ แล้วจะมีคนบริหารประเทศทำไมวะ!?"
“อยู่กันได้ไง! ยูทูบเบอร์สาวต่างชาติสุดผิดหวัง สีหนุวิลล์ กลายเป็นเมืองแห่งด้านมืด—ขยะ หนูตาย คๅสิโนโกง ค่าที่พักแพงสะเทือนใจ”
กกต.เตือนผู้สมัคร เลือกตั้งหากแจกของช่วยเหลือผู้ประสบภัยหาดใหญ่อยู่ในช่วง เลือกตั้ง มีความผิด
ต้องตุนไว้เลย! 5 ผัก “เพนนิซิลินธรรมชาติ” เสริมภูมิคุ้มกันให้คนในบ้านช่วงอากาศเย็น
กัมพูชาวิกฤตหนัก! จีนปิดก๊อกเงิน สนามบินเตโช–คลองฟูนันล่มทั้งแผง…ส่อเน่าเป็นโดมิโน!
สรุปบัตรสวัสดิการแห่งรัฐ เดือน ธ.ค. 68 เงินเข้าวันไหน ได้กี่บาท มี เงินพิเศษ งวดสุดท้าย ก่อนลุ้นรับรายใหม่ปี 69
นักเศรษฐศาสตร์ชาวกัมพูชา โมโหจัดหลังมีข่าวทหารไทยยิงสังหารพลเรือน ชวน นานาชาติ หยุดซื้อของไทย
ชาวบ้านงงงวย หลังเห็นลิงนับร้อย แห่วิ่งลงจากภูเขา
เตือน ผู้ใช้ เป๋าตัง ห้ามกดปุ่มล็อก G-Walletเด็ดขาด ปลดล็อกยาก เสียเวลาโดยใช่เหตุ
ครบรอบ 22 ปี “มหาอุทกภัยหาดใหญ่ 2543” บทเรียนครั้งใหญ่ของเมืองลุ่มน้ำอู่ตะเภา ที่ยังสะท้อนถึงปัจจุบัน
กัมพูชาวิกฤตหนัก! จีนปิดก๊อกเงิน สนามบินเตโช–คลองฟูนันล่มทั้งแผง…ส่อเน่าเป็นโดมิโน!
เตือน ผู้ใช้ เป๋าตัง ห้ามกดปุ่มล็อก G-Walletเด็ดขาด ปลดล็อกยาก เสียเวลาโดยใช่เหตุ
ครบรอบ 22 ปี “มหาอุทกภัยหาดใหญ่ 2543” บทเรียนครั้งใหญ่ของเมืองลุ่มน้ำอู่ตะเภา ที่ยังสะท้อนถึงปัจจุบัน
ศาลสั่งจำคุก สิระ เจนจาคะ 1 ปี จำเลยให้การเป็นปนะโยชน์ลดโทษ จำคุก8 เดือน ไม่รอลงอาญา กรณี หมิ่นประมาท พล.ต.อ.เสรีพิศุทธ์
สรุปบัตรสวัสดิการแห่งรัฐ เดือน ธ.ค. 68 เงินเข้าวันไหน ได้กี่บาท มี เงินพิเศษ งวดสุดท้าย ก่อนลุ้นรับรายใหม่ปี 69




