เปลี่ยนบ้านเก่า 25 ปี ให้เป็นสไตล์ Loft เสร็จออกมาแล้วสวยดั่งฝัน!!
คุณ Tims สมาชิกเว็บไซต์พันทิปได้ออกมาแช์ประสบการณ์ การรีโนเวทบ้านเก่า 25 ปีให้ป็น สไตล์ Loft โดยระบุว่า 'แบ่งปันประสบการ์ณรีโนเวทบ้านเก่า 25ปี ให้เป็นสไตล์ Loft' จำต้องหาบ้านใหม่ให้พ่อแม่ครับ จากที่อยู่ตึกแถวที่เป็นของน้าสาวมากว่า20ปี โจทย์คือไม่อยากให้เปลี่ยนวิถีเค้ามากชีวิตมาก มี 3 ห้องนอน และอยู่งบประมาณที่ครอบครัวพอจะผ่อนไหว ลองหาบ้านโครงการใหม่ๆ ถ้าอยู่ในงบก็ไกลมากๆ เริ่มต้นก็ 4.5 ล้านบาทเลยตระเวนหาบ้านมือสองที่อยู่ละแวกเดิม กว่าจะได้ที่ตรงความต้องการก็ 8-9 เดือนครับ บ้านที่ได้เป็นบ้านแฝด เป็นหมู่บ้านใกล้ๆ เป็นบ้านแฝดพื้นที่ 36 ตรว. ต่อเติมเต็มพื้นที่ สภาพก็ต้องบูรณะใหม่เกือบทั้งหมด เพราะอายุบ้านประมาณ 25 ปีอยากได้บ้านสไตล์ Loft คิดว่าไม่น่าจะเสียค่าตกแต่งแพงมากมาย ทำแบบง่ายๆ ครับ
มาดูสภาพบ้านเดิมตอนสำรวจพื้นที่ครับ
สภาพบ้านเดิม
สภาพบ้านเดิม
สภาพบ้านเดิม
สภาพบ้านเดิม
สภาพบ้านเดิม
สภาพบ้านเดิม
สภาพบ้านเดิม
ขั้นตอนออกแบบ
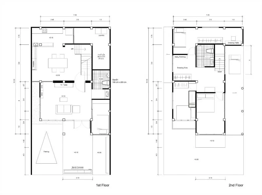
หลังจากสำรวจพื้นที่บ้านเก่า ก็เริ่มวางแผนในใจว่าอยากทำอะไรปรับเปลี่ยนรื้อตรงไหนบ้าง เดิมจะหาภาพ reference แล้วให้เป็นแบบให้ผู้รับเหมาทำ แต่ดูแล้วมีงานต่อเติม แก้ไขเยอะมาก เลยตัดสินใจหาคนออกแบบ Perspective ให้น่าจะดีกว่า พอดีมหลานเพื่อนกำลังเรียน interior อยู่จึงขอให้ช่วยออกแบบ Perspective ให้หน่อย แต่ให้ออกแบบเฉพาะชั้น 1 ส่วนชั้น 2 เป็นห้องนอนออกแบบในหัวเองเรียบๆ ง่าย ขั้นตอนการออกแบบ บ้านเก่าไม่มี Floor Plan เราก็ต้องมาวัดเองเพื่อทำ Floor Plan แชร์ไอเดีย หาภาพตัวอย่าง reference ให้ตอนบรีฟ การออกแบบ แก้ไข ปกติ ไม่เกิน 3 ครั้งครับ กลับแก้ไปแก้มา จนสรุปถูกใจ ได้ภาพ Perspective มาแบบนี้ครับ
ขั้นตอนออกแบบ
ขั้นตอนออกแบบ
ขั้นตอนออกแบบ
ขั้นตอนออกแบบ
ขั้นตอนออกแบบ
ขั้นตอนออกแบบ
ขั้นตอนออกแบบ
ขั้นตอนหาผู้รับเหมา
ขั้นตอนนี้ถือว่ายากที่สุดครับ แนะนำเลยว่าต้องหาช่างดีๆ มีฝีมือและไว้ใจได้เท่านั้นครับด้วยความที่ไม่รู้จักช่างครับ ก็สอบถามเพื่อนในหมู่บ้านที่ผมอยู่ งบประมาณไม่สูง ก็ต้องหาช่างเองแบ่งเป็น 3ส่วน
1.งานปูนงานก่อสร้าง หาได้มา 3 เจ้า ตีราคามา 2 เจ้า ตกลงราคาและเริ่มกำหนดทำ
2.งานระบบไฟ งานไฟฟ้า จากช่างที่เคยซ่อมไฟหน้าบ้านให้ กับช่างไฟจากร้านขายอุปกรณ์ไฟราคาส่ง ตีเทียบราคาดู
3.งานหลังคา ประตู กระจก อลูมิเนียม ก็มีร้านในหมู่บ้าน กับร้านที่เคยทำ และจากช่างปูนแนะนำ
4.ช่างทำทรายล้าง ระยะเวลาทำงานทรหดมากครับ 8 เดือน เพราะผมประสบปัญหาเรื่องช่างล้วนๆ
ช่างปูน ก่อนรับงานการันตีไม่เคยทิ้งงาน แรกๆ ทำงานไว ดี แต่หลังจากรื้อเสร็จ เริ่มงานก่อสร้าง ฉาบปูนประสบปัญหา หัวหน้าช่างไม่ดูต้องซ่อมทำใหม่ รื้อเจอปัญหาโครงสร้างไม้เดิมมีปลวก ก็ต้องรื้อโครงหลังคาใหม่ ก็ต่อรองเพิ่มเติมค่าก่อสร้าง แต่จนเหลืองวดสุดท้าย ก็เบิกเงินแล้วทำไม่เสร็จก็หนีไปครับ ผรม. เวลาเบิกเงินงวด มักจะอ้างเสมอครับว่า ไม่มีเงินซื้อของ ถ้าไม่มีเงินก็ไม่ทำ ผมให้เบิกเงินก่อนปริมาณงานแล้วเสร็จครับ
ช่างไฟ ผมเลือกเจ้าที่ถูกที่สุด แต่คือการเลือกที่ผิด เพราะช่างประสบปัญหาเงินส่วนตัว ขอเบิกเงินงวดแรกไปก่อน 40% อ้างว่าซื้อของ แล้วก็มาๆ ทำๆ หยุดๆ สุดท้าย ผมต้องเปลี่ยนเจ้าโดยใช้ช่างไฟจากร้านขายส่ง ที่ซื้อขายกับร้านเป็นเวลานาน สอบถามร้านไฟให้แนะนำที่ช่างไว้ใจได้ได้ช่างดีครับ แต่งานเยอะ ช่วงเก็บงานกว่าจะตามมาก็ 2 -3 เดือนครับ
ช่างอลูมิเนียม หลังคาช่างดีครับ งาน ok มีไม่ตรงแบบบ้าง แต่เหลืองานไม่กี่ชิ้น ช่างไปรับงานใหญ่ที่ต่างจังหวัด แล้วผรม.ที่ส่งต่อเสียชีวิตช่วงปีใหม่ ผมเลยงานเข้า ช่างขาดสภาพคล่องมาเก็บงาน ตอนนี้ก็ยังมีเหลืองานที่ต้องแก้ไขอยู่
ช่างทำกรวดล้าง ทรายล้าง เป็นช่างที่ดีที่สุดจากบรรดาช่างทั้งหมด เพราะเป็นช่างเก่าแก่ของพ่อเองครับ พ่อให้ทำพื้นหน้าบ้านใหม่หมด ทำงานเรียบร้อยช่วยเก็บงานเก่าของช่างปูน ช่างหลังคาให้ด้วย เสียดายที่ให้เค้าทำช้าไป
นี่แหละครับประสบการณ์รีโนเวทอันน่าจดจำกับช่างบ้านๆ ของผม
ภาพถ่ายตอนช่วง renovate ครับ รื้อพื้น ฝ้า กระเบื้อง สายไฟเก่าท้งหมด งานทุบผนังเก่า ก่อผนังใหม่ตามแบบ
ภาพถ่ายตอนช่วง renovate
งานรื้อที่ยากคือพวกกระเบื้องห้องน้ำ ห้องครัวเก่า เพราะใช้ปูนเก่าต้อง ใช้เวลารื้อเกือบสัปดาห์
สภาพฝ้าชั้น 1 หลังรื้อออกทั้งหมด เพื่อเปิดเพดานสูง
รื้อผนังห้องนอนเก่าออก เปลี่ยนเป็นบ้านเลื่อนอลูมิเนียมเพื่อให้ดูโล่งขึ้น
ไฟช่าง 2 ทำแบบฝังท่อเดินสายไฟ รอยที่เห็นคือช่างคนแรก ทำผิดตำแหน่งต้องเจาะเพิ่มใหม่
เทพื้นทำเป็นพื้นปูนเปลือย
เทพื้นทำเป็นพื้นปูนเปลือย
เทพื้นทำเป็นพื้นปูนเปลือย
ระบบไฟ เปลี่ยนช่างใหม่เริ่มเดินท่อชั้น 1 ตามรูปแบบที่ให้เป็นตัวอย่าง
ระบบไฟ
ระบบไฟ
ระบบไฟ
ระบบไฟ
ระบบไฟ
ระบบไฟ
งานติดตั้งประตูหน้าต่าง เหล็ก อลูมิเนียมครับ
งานติดตั้งประตูหน้าต่าง เหล็ก อลูมิเนียมครับ
งานติดตั้งประตูหน้าต่าง เหล็ก อลูมิเนียมครับ
งานติดตั้งประตูหน้าต่าง เหล็ก อลูมิเนียมครับ
ที่เหนื่อยอีกเรื่องคือการย้ายเฟอร์นิเจอร์เก่าจากบ้านเก่ามาใช้ครับ ต้องวางแผนวัดขนาดต่างๆ มาดีๆ บ้านเดิมผมเป็นตึกแถวมีพื้นที่กว้างมาก ตู้เตียงต้องเลือกและตัดใจอันไหนทิ้งอันไหนเก็บไว้ พวกตู้ที่ย้ายมาเพราะเสียดาย และถ้าหาซื้อใหม่ เดี๋ยวนี้ตู้เสื้อผ้าหลังนึงหลายหมื่นครับ เลยหาช่างเฟอร์นิเจอร์จับอันเก่ามารื้อ รีโนเวทใหม่ ใช้งบส่วนเฟอร์นิเจอร์เก่า 35,000 บาท
งานเฟอร์นิเจอร์
งานเฟอร์นิเจอร์
งานเฟอร์นิเจอร์
งานเฟอร์นิเจอร์
งานเฟอร์นิเจอร์
ส่วนเฟอร์นิเจอร์สไตล์ Loft ก็สั่งจากร้านในเว็บครับ เขียนแบบและหา reference ตัวอย่างให้ช่างทำครับ
เฟอร์นิเจอร์สไตล์ Loft
เฟอร์นิเจอร์สไตล์ Loft
เฟอร์นิเจอร์สไตล์ Loft
แบบห้องน้ำ
สำหรับเรื่องห้องน้ำ ผมให้น้องเค้าออกแบบ Perspective คร่าวๆ แต่ตอนทำจริง แนะนำให้ไปที่ๆ เราจะซื้อกระเบื้อง แล้วใช้บริการออกแบบ 3D ให้ครับ จะละเอียดและเห็นภาพชัดเจนว่า เพราะใส่ลายกระเบื้องที่เราจะใช้จริงไปครับ ซึ่งเค้าจะให้เราเห็นแบบ ทุกมุมมอง ห้องน้ำชั้น 1
มาดูบ้านที่เสร็จสมบูรณ์ แล้วย้ายเข้ามาอยู่กันครับ
บ้านที่เสร็จสมบูรณ์
บ้านที่เสร็จสมบูรณ์
บ้านที่เสร็จสมบูรณ์
บ้านที่เสร็จสมบูรณ์
บ้านที่เสร็จสมบูรณ์
บ้านที่เสร็จสมบูรณ์
เรียกได้ว่าสวยลงตัวทุกมุมเลยก็ว่าได้ สำหรับใครที่ชื่นชอบบ้านสไตล์ loft ก็ลองดูเป็นไอเดียได้นะคะ
"นานา " ประกาศขายบ้านหรู 69 ล้านบาท กลางไอจี หลายฝ่ายมองว่ากำลังเตรียมเคลียร์ปัญหา หนี้สิน สินที่ติดค้างเพื่อน
ราชกิจจาฯ เผยแพร่ คำสั่งศาลให้ นักแสดงรุ่นใหญ่ “มยุรฉัตร เหมือนประสิทธิเวช” ผู้จัดดัง เป็นคนไร้ความสามารถ
ไทยจะสงบเมื่อไหร่ หมด"ฮุน เซน" ก็ยังมี "สม รังสี"
เสร็จสมบูรณ์แล้วญาญ่า บ้านเขาใหญ่ อลังการสวยงามตามากๆ
"โก๊ะตี๋-ใบมิ้นต์" โชว์หวานรอบใหม่
เด็กเกาหลีจุดไฟเผาบ้านหลังพ่อแม่ไม่ซื้อมือถือให้
อดีตนายกแพทองธาร นำพวงมาลัยดอกมะลิกราบบิดาหลังพึ่งผ่าน วันเกิดมารดา














































































